服务领域
建筑设计
市政交通
园林规划
咨询监理
智慧城市
室内设计
关于我们
核心团队
资讯动态
行业资讯
公司动态
联系我们
首页
服务领域
建筑设计
市政交通
园林规划
咨询监理
智慧城市
室内设计
关于我们
核心团队
资讯动态
行业资讯
公司动态
联系我们
中鼎设计微信服务号
返回
Case show
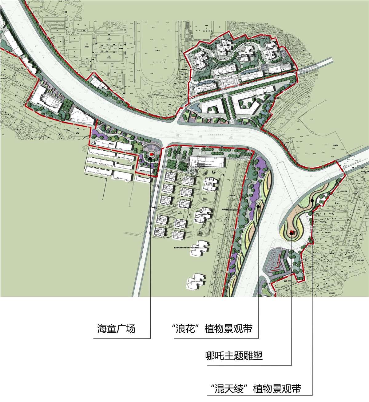
宜宾“两线一片”城市景观
>建设地点:宜宾市>规划面积:约17.9公顷>项目解读:“两线”指高速公路南、北出口及其沿线;“一片”指北至水东门、专署街,西至小北街、大南街,东、南延伸至滨江路。
SHARE